ACCOMMODATION
SCHEDULE OF AREAS


FLOOR PLANS
GROUND FLOOR
209 SQ M
2,248 SQ FT
RECEPTION: 122 SQ M/1,316 SQ FT
BUSINESS LOUNGE: 187 SQ.M/932 SQ.FT

FIRST FLOOR
263 SQ M
2,826 SQ FT
FULLY FITTED AND FURNISHED SHOW FLOOR

SECOND FLOOR
236 SQ M
2,537 SQ FT
2 NO. TERRACES
20 SQ M
29 SQ FT

THIRD FLOOR
237 SQ M
2,550 SQ FT

FOURTH, FIFTH, SIXTH AND SEVENTH FLOORS
280 SQ M
3,017 SQ FT

EIGHT FLOOR
244 SQ M
2,629 SQ FT
2 NO. TERRACES
31 SQ M
337 SQ FT

BASEMENT
60 BICYCLE SPACES AND 7 SELF-CONTAINED SHOWER/CHANGING ROOMS INCLUDING ACCESSIBLE SHOWER

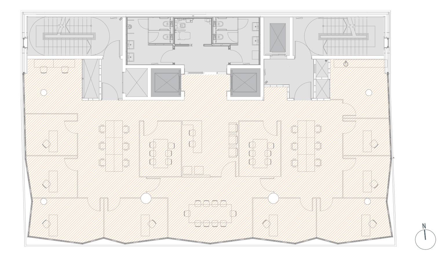
SPACE PLANS
1:8
36 WORKSTATIONS
2 OFFICES
2 MEETING ROOMS
BREAKOUT SPACES

1:10
24 WORKSTATIONS
3 OFFICES
3 MEETING AREAS
RECEPTION (1 PERSON)
BREAKOUT SPACES

1:12
12 WORKSTATIONS
8 OFFICES (1 PERSON)
1 OFFICE (2 PERSONS)
3 MEETING ROOMS
RECEPTION (2 PERSONS)

